Ymateb i'r gymuned
Yn drist iawn caeodd yr ysgol ei drysau ym mis Rhagfyr 2021 wedi i’r cyngor benderfynu nad oedd yn ymarferol nac yn gyllidol bosibl i gadw’r ysgol ar agor. Ond yn dilyn gwrthwynebiad chwyrn gan y bobl leol a phryderon am yr effeithiau negyddol oherwydd cau’r ysgol, mi gynigiodd Cyngor Sir Gwynedd i drosglwyddo prydles yr adeilad i’r gymuned.
Daeth criw o wirfoddolwyr at ei gilydd i gychwyn y broses, ac mae Dobson Owen wedi bod yn eu helpu i ddatblygu syniadau ar sut i adfer yr adeilad wrth ei addasu ar gyfer defnydd amgen ar gyfer y gymuned.


Y canlyniad
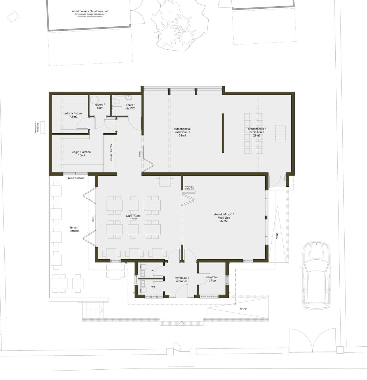
Y cynigion a roddwyd gerbron oedd caffi gydag arddangosfa o hanes a threftadaeth y pentref, gofod aml-bwrpas, a gardd a rhandir gymunedol fyddai’n weladwy o’r caffi. Byddai rhan o’r iard ysgol o bosib yn cynnwys unedau busness mewn cynhwysyddion llong wedi eu haddasu i’w rhentu allan i fentrau lleol neu busnesau bychan sy’n cychwyn o’r newydd neu arlunwyr.

